Ruhiges Wohnen, starke Anbindung – Kapitalanlage in gefragter Lage Möllns!
23879 Mölln, Zweifamilienhaus zum Kauf
Kontaktdaten
-
NameHerr Jonas Brauner
Immobilienmakler (IHK) -
Firmaihr-immopartner UG (haftungsbeschränkt)
-
AdresseHauptstraße 112
23879 Mölln -
E-Mail Zentrale
-
Tel. Zentrale
Objektdaten
-
Objekt IDM0091
-
ObjekttypenHaus, Zweifamilienhaus
-
Adresse(Mölln , Kr Hzgt Lauenb)
23879 Mölln -
Etagen im Haus3
-
Wohnfläche ca.196,99 m²
-
Nutzfläche ca.108,96 m²
-
Grundstück ca.699 m²
-
Zimmer9
-
Schlafzimmer7
-
Badezimmer2
-
Balkone1
-
Terrassen2
-
HeizungsartEtagenheizung
-
Wesentlicher EnergieträgerGas
-
Baujahr1974
-
Zustandnach Vereinbarung
-
AusstattungStandard
-
BauweiseMassiv
-
Statusvermietet
-
Stellplätze gesamt2
-
Stellplätze2 Stellplätze
-
Käuferprovision3,57 % inkl. 19 % MwSt.
-
Kaufpreis349.000 EUR
Ausstattung / Merkmale
- ✓ Badewanne
- ✓ Balkon
- ✓ Balkon/Terrasse Südwest
- ✓ Einbauküche
- ✓ Einliegerwohnung
- ✓ Kabel-/Sat-TV
- ✓ Keller
- ✓ Massivbauweise
- ✓ Tageslichtbad
- ✓ Terrasse
Energieausweis
-
EnergieausweistypBedarfsausweis
-
Gültig bis16.09.2035
-
GebäudeartWohngebäude
-
Baujahr lt. Energieausweis2006
-
PrimärenergieträgerGas
-
Endenergiebedarf189,80 kWh/(m²·a)
-
EnergieeffizienzklasseF
Objektbeschreibung
Beschreibung
Dieses Wohnhaus aus dem Jahr 1974 präsentiert sich als gepflegte Kapitalanlage mit zwei vermieteten Wohneinheiten.
Das Haus wurde fortlaufend instand gehalten. Sowohl Küchen als auch Bäder wurden im Laufe der Jahre modernisiert, sodass die Wohnungen heute über eine zeitgemäße und solide Ausstattung verfügen. Jede Einheit wird über eine eigene Heizungstherme mit Warmwasserbereitung versorgt, was für Transparenz und eine klare Nebenkostenstruktur sorgt.
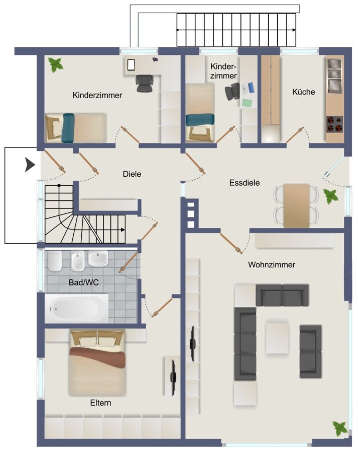
Die Erdgeschosswohnung mit insgesamt 104,66 m² Wohnfläche überzeugt durch eine großzügige Diele, eine separate Küche, ein Esszimmer sowie zwei weitere gut geschnittene Zimmer und ein helles Wohnzimmer. Von hier aus gelangt man auf die private Terrasse, die zusätzlichen Wohnkomfort im Freien bietet.
Die Dachgeschosswohnung mit insgesamt 92,33 m² verfügt über nahezu den gleichen Grundriss mit etwas reduzierter Wohnfläche und wird durch eine große Sonnenloggia auf ganzer Hausbreite ergänzt – ein idealer Ort, um den Sommer zu genießen. Zusätzlich steht ein Dachboden zur Verfügung, der derzeit als Abstellfläche genutzt wird, jedoch weiteres Ausbaupotenzial bereithält.
Der Vollkeller ist gemeinschaftlich nutzbar und sowohl über die Erdgeschosswohnung als auch über einen separaten Außenzugang erreichbar. Neben den klassischen Abstellräumen befinden sich hier die Heizungsanlage sowie ein großer Hobbyraum, der vielfältige Nutzungsmöglichkeiten eröffnet.
Zwei Außenstellplätze runden das Angebot ab.
Insgesamt handelt es sich um ein solides, gut instand gehaltenes Wohnhaus mit zwei vermieteten Einheiten, attraktiver Raumaufteilung, zusätzlichem Keller- und Dachbodenpotenzial sowie einer gefragten Lage in Mölln – eine nachhaltige Investition in ein bewährtes Wohnumfeld.
Ausstattung
Das Haus wurde in 1974 als Einfamilienhaus mit EInliegerwohnung errichtet.
Dach und Fenster stammen aus dem Baujahr, vereinzelt wurden Glasscheiben in den vorhandenen Holzrahmen erneuert.
Beide Wohnungen verfügen über je eine eigene Gas-Kombitheme (2006 / 2013) für Heizung und Warmwasserbereitung.
Die Wohnungen sind seit April und Mai 2021 vermietet, dabei ist eine Partei lediglich von oben nach unten gezogen.
Die Mieteinnahmen belaufen sich auf derzeit € 780,00 Nettokaltmiete im Monat / € 9.360,00 pa im Erdgeschoss, sowie € 719,00 Nettokaltmiete im Monat / € 8.628,00 pa im Dachgeschoss. Mithin € 17.988,00 pa Gesamteinnahmen. Die Mieten wurden zuletzt zum 01.01.2025 angepasst.
Sonstige Informationen
Weitere Immobilien finden Sie unter www.ihr-immopartner.com.
Haben Sie Interesse an einer individuellen Finanzierung? - Unsere Berater stehen Ihnen gern für ein ausführliches Finanzierungsgespräch zur Verfügung. Lassen Sie sich gern unverbindlich über Immobilienfinanzierung, ggf. im Zusammenhang mit staatlichen Förderungen, informieren.
Angebot freibleibend. Irrtum vorbehalten.
Der Maklervertrag mit uns kommt durch schriftliche Vereinbarung oder durch die Inanspruchnahme unserer Maklertätigkeit auf der Basis des Immobilien-Exposés und den dort abgedruckten allgemeinen Geschäftsbedingungen zustande.
Die ihr-immopartner UG erhält einen unmittelbaren Zahlungsanspruch gegenüber dem Käufer oder Vermieter (§ 328 BGB, Vertrag zugunsten Dritter). Grunderwerbssteuer, Notar- und Gerichtskosten trägt der Käufer.
Lage
Die angebotene Immobilie befindet sich in einer der gefragtesten Wohnlagen von Mölln, dem charmanten Kurort im Kreis Herzogtum Lauenburg. Eingebettet in eine ruhige, grüne Umgebung, kombiniert der Standort idyllisches Wohnen mit einer hervorragenden Infrastruktur und exzellenten Verkehrsanbindungen. Hier genießen Sie die perfekte Balance aus Natur, Kultur und urbaner Nähe.
Mölln überzeugt durch seine hohe Lebensqualität und sein historisches Flair. Die romantische Altstadt mit ihren verwinkelten Gassen, liebevoll restaurierten Fachwerkhäusern und gemütlichen Cafés lädt zum Bummeln und Verweilen ein. Zahlreiche Restaurants, Boutiquen und kulturelle Angebote sorgen für ein lebendiges Stadtbild, während idyllische Seen, weitläufige Wälder und das Naturschutzgebiet Hellbachtal direkt vor der Haustür Erholung pur ermöglichen.
Die Infrastruktur lässt keine Wünsche offen: Einkaufsmöglichkeiten, Supermärkte, Ärzte, Apotheken und Banken befinden sich in unmittelbarer Nähe. Familien profitieren von einem vielfältigen Bildungsangebot mit Kindergärten, Grundschulen und weiterführenden Schulen direkt vor Ort. Auch Sport- und Freizeitvereine, kulturelle Veranstaltungen sowie Wellness- und Erholungsangebote machen Mölln zu einem idealen Lebensmittelpunkt.
Ein weiterer großer Vorteil ist die hervorragende Verkehrsanbindung. Über die Bundesstraße B207 und die Autobahn A24 erreichen Sie die Metropole Hamburg ebenso wie die Hansestadt Lübeck in rund 40 bis 45 Minuten. Für Pendler und Berufspendler bietet sich so eine optimale Verbindung zwischen ruhigem Wohnen und urbanem Arbeiten. Der Bahnhof in Mölln ergänzt das Mobilitätsangebot mit regelmäßigen Zugverbindungen in Richtung Lübeck, Hamburg und Lauenburg.
Mölln bietet ein einzigartiges Lebensgefühl: Hier verbinden sich naturnahes Wohnen, hoher Freizeitwert und eine ausgezeichnete Infrastruktur mit der Nähe zu zwei der schönsten Hansestädte Norddeutschlands. Ob für Kapitalanleger oder Eigennutzer – die Lage dieser Immobilie spricht für sich und stellt eine nachhaltige Wertanlage in einem stetig wachsenden Wohnumfeld dar.
Kindergarten 620 m | Grundschule 700 m | Hauptschule 3,90 km | Realschule 950 m | Gymnasium 950 m | Flughafen 58,70 km | Fernbahnhof 1,06 km | Autobahn 7,93 km | Zentrum 1,30 km | Bus 290 m | Einkaufsmöglichkeiten 1,20 km | Gaststätten 480 m
Die dargestellte Position der Immobilie ist nur eine ungefähre Angabe.
























